Le Journal

Maladies auto-immunes : quand le stress et les émotions fragilisent le système immunitaire

Al Arabi-Al Gharafa (1-2) : Sublime passe décisive de Brahimi
Avec une nouvelle offrande face à Al Arabi ce jeudi, Yacine Brahimi a signé sa 12e passe décisive toutes compétitions confondues depuis le début de la saison. Grâce à ce succès, Al Gharafa conforte sa place en tête de la Qatar Stars League. L’article Al Arabi-Al Gharafa (1-2) : Sublime passe décisive de Brahimi est apparu en premier sur La Gazette du Fennec.

La Légende de la Mort (Anatole le Braz) racontée chaque jour sur Breizh-info.com : L’intersigne des « épingles »

Kai Cenat Enters His Reading Era & Fans Are Loving It

Infrastructure IA : l'ICMS de Nvidia chamboule les baies de disques
Dans la prochaine génération de ses accélérateurs, Nvidia a mis au point un système censé servir à recharger plus vite les contextes des précédentes sessions d’IA générative. Mais celui-ci cogne contre les optimisations déjà imaginées par les acteurs du stockage.

Ligue 1 : Endrick fait une victime à Lyon

APPARTEMENT T4 70 M2 BORDEAUX

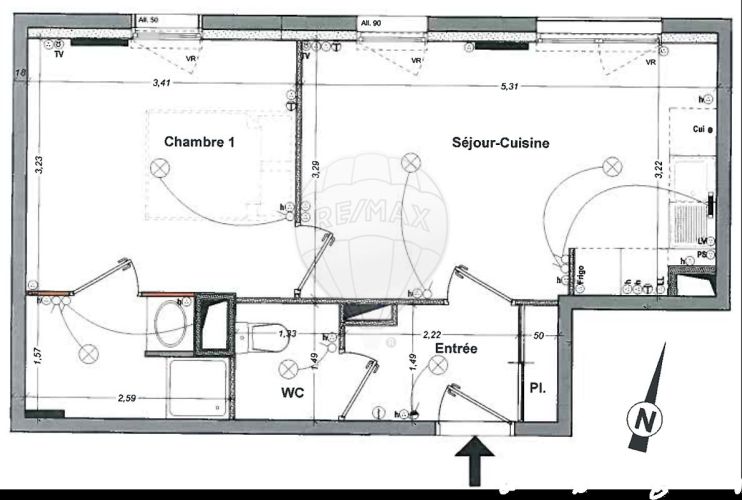
APPARTEMENT T2 57 M2 NANTES

STUDIO 16 M2 NANTES
EN EXCLUSIVITE Chez RE/MAX Actimmo Nantes â Quartier Zola : le studio idéal pour investir ou débuter ! Dans le quartier prisé et vivant de Zola, découvrez ce charmant studio de 16 m², libre de toute occupation et pràªt à accueillir son nouveau propriétaire. Nichée au sein d'une petite copropriété bien entretenue de 8 lots, cette adresse offre un cadre de vie calme et pratique, à deux pas des commerces, transports et du centre-ville de Nantes. Les points forts du bien Emplacement recherché : cÅur du quartier Zola, proche des commodités et des transports Studio lumineux et fonctionnel, idéalement agencé Cuisine aménagée et équipée, pràªte à l'emploi Salle d'eau avec WC intégré Copropriété à taille humaine, bien entretenue Libre de locataire : possibilité d'y vivre ou de louer immédiatement en meublé ou en location nue Un investissement malin Que vous soyez investisseur à la recherche d'un bien rentable ou jeune acquéreur souhaitant devenir propriétaire à Nantes, ce studio représente une opportunité rare sur le secteur Zola. Actuellement en DPE E, passera en DPE D dès janvier 2026 sans aucun travaux. Une adresse stratégique, un bien pràªt à vivre, un placement sà»r. à visiter sans tarder ! Prix 72 000 ⬠honoraires exclus. Honoraires de 6 120 TTC à la charge de l'acquéreur. Bien en copropriété : 8 lots. Montant moyen annuel de la quote-part de charges courantes : 480 â¬. Nombre de procédure en cours: 0. Les informations sur les risques auxquels ce bien est exposé sont disponibles sur le site Géorisques : www.georisques.gouv.fr.

APPARTEMENT T2 43 M2 TERRASSE SAINT HERBLAIN
EN EXCLUSIVITE CHEZ RE/MAX ACTIMMO Idéal investisseur ! Dans une résidence récente et bien entretenue, venez découvrir cet appartement fonctionnel et lumineux, vendu avec locataire en place. Il se compose d'une entrée avec placard, d'une agréable pièce de vie baignée de lumière avec cuisine aménagée et équipée, ouverte sur une terrasse privative, parfaite pour profiter des beaux jours. Cà´té nuit, vous apprécierez une chambre confortable et une spacieuse salle d'eau avec WC. Les atouts qui font la différence : Exposition Sud-Est â pour une belle luminosité tout au long de la journée Place de parking sécurisée en sous-sol Proximité immédiate des commerces et transports Actuellement loué à un locataire sérieux, cet appartement offre un revenu locatif stable et garanti â une excellente opportunité pour un investissement serein. Loyer mensuel : 575 ⬠+ 35 ⬠de charges. Prix 140 000 ⬠honoraires exclus. Honoraires de 9 900 TTC à la charge de l'acquéreur. Bien en copropriété : 198 lots dont 140 à usage d'habitation. Montant moyen mensuel de la quote-part de charges courantes : 76 â¬. Nombre de procédure en cours: 0. Les informations sur les risques auxquels ce bien est exposé sont disponibles sur le site Géorisques : www.georisques.gouv.fr . .

APPARTEMENT T2 38 M2 NANTES
à vendre â Appartement T2 avec Box fermé â Mellinet, Nantes Au cÅur du quartier prisé de Mellinet, cet appartement T2 de 38 m² offre un cadre de vie fonctionnel et agréable, idéal pour un primo-accédant ou un investisseur. Situé au 1áµÊ³ étage d'une résidence récente et soignée (2011) avec ascenseur, il se compose d'une entrée avec placard, d'un séjour avec kitchenette, d'une chambre disposant d'un accès direct à la salle d'eau, ainsi que de WC séparés. Un garage box fermé en sous-sol apporte un vrai plus dans le secteur. Un bien rare à la vente, à découvrir sans attendre. Contactez-nous pour organiser une visite. Honoraires à la charge du vendeur. Montant moyen annuel de la quote-part de charges courantes : 1060 â¬. Nombre de procédure en cours: 0. Les informations sur les risques auxquels ce bien est exposé sont disponibles sur le site Géorisques : www.georisques.gouv.fr .

