Le Journal

MAISON 165 M2 MALLEMORT

APPARTEMENT T2 26 M2 MALLEMORT

APPARTEMENT T2 33 M2 MALLEMORT
A vendre , Domaine de Pont Royal , Bel Appartement vue exceptionnelle sur le Golf, piscine dans la résidence RARE à la vente, ADN vous propose un appartement orientation sud, dans le Domaine prestigieux et sécurisé de Pont Royal, quartier privilégié, il est vendu meublé et équipé, il offre une surface de 33,32 m², avec une loggia de 12 m² La vue est exceptionnelle, sur le Golf, coucher de soleil sur les Alpilles Il dispose d'un séjour, espace repas, coin cuisine équipée, une chambre avec placards, une salle de bains, WC indépendant. Place de parking privative, piscine dans la résidence a voir absolument?! NOUS AIMONS - Son emplacement bordure de golf - Son premier et dernier étage en angle - Son intérieur fonctionnel et rénové - Sa piscine L'appartement est libre de tout bail, il peut àªtre également confié à la location saisonnière ou à la location à l'année. Le Domaine de Pont Royal est sécurisé 24 heures sur 24, à l'entrée se trouve un poste de garde. Il est situé entre Aix-en-Provence et Avignon, à 15 minutes de Salon de Provence. Le village est Mallemort avec ses commerces, son marché, ses écoles, son cinéma, sa bibliothèque. Le Domaine est proche des grands axes routiers, nationale 7, entrée d'autoroute à 6 kilomètres, il est à 40 minutes de l'aéroport de Marseille Provence et des gares TGV. d'Aix-en-Provence, et d'Avignon. ADN IMMO, l'agence du Domaine de Pont Royal, pourra vous proposer des biens à la vente, villas et appartements N'hésitez pas à nous contacter au 06 34 07 65 47

MAISON 4 PIECES 94 M2 MALLEMORT

APPARTEMENT T3 74 M2 TERRASSE BORD DE MER MIRAMAS

APPARTEMENT T2 43 M2 BORD DE MER MIRAMAS
T2 de 43m² RESIDENCE PARADIS M LOT 36 Résidence 'LE PARADIS M' , liv 2027, très proche du centre ville, médiathèque, lycée, collèges et écoles. T2 de 43M² env. au 3eme étage avec ascenseur, loggia de 5m² env. L'appartement vous propose un séjour cuisine de 26m² env. 1 grande chambre de 11m² env. SDE et WC. Exposition sud . De plus vous disposez d'une place de parking en sous-sol. Pour toutes informations complémentaires, n'hésitez pas à nous contacter ou nous rencontrer

APPARTEMENT T2 49 M2 TERRASSE BORD DE MER MIRAMAS
T2 de 50m² RESIDENCE PARADIS M LOT 44 résidence 'LE PARADIS M' , liv 2027, très proche du centre ville, médiathèque, lycée, collèges et écoles. T2 de 50M² env. au dernier étage avec ascenseur, grande terrasse de 14m² env. L'appartement vous propose une séjour cuisine de 30m² env. 1 grande chambre de 12m² env. SDE et WC indépendant. Exposition sud . De plus vous disposez d'une place de parking en sous-sol. Pour toutes informations complémentaires, n'hésitez pas à nous contacter ou nous rencontrer

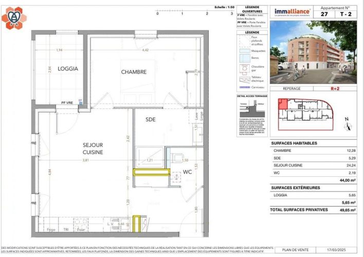
APPARTEMENT T2 44 M2 BORD DE MER MIRAMAS
T2 de 44m² RESIDENCE PARADIS M LOT 27 Résidence 'LE PARADIS M' , liv 2027, très proche du centre ville, médiathèque, lycée, collèges et écoles. T2 de 44M² env. au 2eme étage avec ascenseur, loggia de 5.5m² env. L'appartement vous propose une séjour cuisine de 24m² env. 1 grande chambre de 12m² env. SDE et WC indépendant. Exposition ouest . De plus vous disposez d'une place de parking en sous-sol. Pour toutes informations complémentaires, n'hésitez pas à nous contacter ou nous rencontrer

APPARTEMENT T2 44 M2 BORD DE MER MIRAMAS

STUDIO 24 M2 TERRASSE BORD DE MER MIRAMAS

APPARTEMENT T2 46 M2 BORD DE MER MIRAMAS

